Maristela Pimentel Alves, Janeiro de 2025. CONHEÇA
A cidade de Berlim teve papel de relevância na carreira de Mies van der Rohe. Foi nela que Mies pode impulsionar e se firmar como uma figura fundamental na arquitetura modernista.
Ludwig Mies van der Rohe foi um renomado arquiteto alemão, conhecido por suas obras modernistas construídas em várias cidades, principalmente da Alemanha e dos EUA. Nascido em Aachen, na Alemanha, em 1886, Mies ficou famoso também por sua influente filosofia de design minimalista e por seu famoso aforismo “menos é mais” na arquitetura. Suas contribuições influenciaram significativamente a arquitetura do século XX, em especial por suas obras icônicas, como o Pavilhão de Barcelona e o Edifício Seagram no centro de Manhattan.
O conceituado arquiteto não frequentou uma escola formal de arquitetura, mas desenvolveu suas habilidades por meio de experiências práticas, orientações individuais e cursos técnicos. Este era um caminho comum de formação naquele tempo, que ele completou com a convivência com arquitetos de vanguarda na época.
Ludwig Mies começou sua carreira trabalhando na loja de esculturas em pedra de seu pai e depois foi aprendiz em empresas e escritórios em sua cidade natal, Aachen. De 1899 a 1901, ele se preparou para sua vida profissional na Gewerbeschule1 Aachen (escola técnica profissional da cidade) e como aprendiz de pedreiro em uma empresa de construção. Em seguida, conseguiu seu primeiro emprego como desenhista de ornamentos de estuque e esteve envolvido de forma significativa no projeto e na construção de alguns edifícios em Aachen. Todas essas experiências, em especial na firma de seu pai, lhe deram noção sobre materiais que mais tarde ficaram evidentes em sua arquitetura e design de mobiliários.
Em busca de novas possibilidades para a sua vida profissional, Mies mudou-se para Berlim e trabalhou em algumas firmas de arquitetura, até que, por sugestão de um colega de trabalho, se integrou à equipe do arquiteto Peter Behrens2 na cidade de Potsdam, a 30km de Berlim. Behrens era uma figura proeminente no cenário arquitetônico de vanguarda alemão. Em seu escritório, Mies teve Le Corbusier e Walter Gropius como colegas. Este período foi crucial para seu desenvolvimento como arquiteto, pois lhe proporcionou uma base em princípios modernistas e metodologias de design, rendendo-lhe também uma compreensão acerca de projeto arquitetônico e de construção.
Mies retornou a Berlim em 1913, abriu um escritório de arquitetura e foi contratado para construir um edifício residencial em Zehlendorf3, o primeiro de uma série de residências nos 10 anos subsequentes. No início, sua arquitetura ainda atendia aos gostos predominantes da época, como o uso de telhados altos e inclinados, ou em inspirações classicistas e neorrenascentistas. Porém, posteriormente passou a enfatizar a simplicidade, o funcionalismo e a clareza no design, a defender espaços abertos e a expressão honesta dos materiais.
Num esforço amplo para criar uma personalidade mais sofisticada, o arquiteto, nascido Maria Ludwig Michael Mies, fez uma mudança em seu nome, excluiu “Maria e Michel” e adicionou “van der Rohe”. Tratou-se de uma forma de marketing para melhorar sua imagem profissional no cenário arquitetônico, que naquela época se apresentava bastante competitivo. A adição de “van der Rohe” dava ao seu nome um tom mais nobre e distinto, que coincidia com sua crescente proeminência no mundo da arquitetura.
Apesar da sua questão individual com a palavra „mies”, que em alemão possui significados negativos, como „péssimo“ e „ruim“, esta mudança não foi um movimento isolado do arquiteto, mas alinhava-se à tendência dos artistas e arquitetos daquela geração de usar nomes que soavam mais aristocráticos, transmitindo assim sofisticação e autoridade em seu campo de atuação. Tratava-se de uma forma de impulsionar a carreira profissional naquele tempo.
As contribuições de Mies não se restringiram apenas ao projeto arquitetônico. Mies também atuou como educador: primeiro na Bauhaus4 em Dessau, depois na Bauhaus de Berlim e, por último, em uma universidade nos EUA.
O clima político na Alemanha durante o final dos anos 1920 e início dos anos 1930, o avanço da extrema direita nazista, levaram à demissão do diretor da Bauhaus, Hannes Meyer, por ser declaradamente comunista. Walter Gropius, arquiteto alemão fundador e primeiro diretor da escola Bauhaus, escolheu Mies van der Rohe como seu substituto, já que esse era um arquiteto de renome internacional e ele fez o que lhe foi pedido: expulsou estudantes rebeldes e de esquerda.
No entanto, isso não garantiu a permanência da Bauhaus em Dessau. Ela foi expulsa da cidade e teve que ser transferida para Berlim em 1932. Esta mudança, porém, também não assegurou o pleno funcionamento da escola, que foi fechada em 1933, o que significou uma grande derrota para Mies, que estava bastante preocupado com a sua reputação. O arquiteto estava entre seis convidados a participar do concurso do projeto do Reichsbank (o Banco do Império), o primeiro concurso promovido pelos nazistas que estavam chegando ao poder nacional.

Perspectiva da proposta de Mies van der Rohe para o concurso da sede do Reichsbank (banco do Império) de Hitler.
Fonte: the lying truth; Posted on March 19, 2017 by argitect
O arquiteto considerava que reabrir a Bauhaus seria positivo para a sua imagem. Por isso, ele persistiu até conseguir um encontro com o chefe da Gestapo, Rudolf Diels, e obteve a permissão para reabrir a escola. Uma das condições para essa reabertura era que Wassily Kandinsky e o planejador urbano Ludwig Hilbersheimer, que eram considerados politicamente não confiáveis pelos nazistas, se demitissem. A Bauhaus funcionou então como uma escola particular e, em seguida, o próprio Mies a fechou por falta de recursos financeiros.
Por quase cinco anos, Mies van der Rohe tentou desempenhar um papel de liderança na arquitetura do “Terceiro Reich”, demorando a perceber que isso não seria possível.
Elaine Hochman, em seu livro Architects of Fortune: Mies Van Der Rohe and the Third Reich, menciona a fala de Sibyl Moholy-Nagy, a viúva do artista e professor da Bauhaus, László Moholy-Nagy, que diz que Mies van der Rohe teria sido um traidor para todos eles. Mies teria, inclusive, assinado um “apelo de artistas criativos” para que votassem a favor da nomeação de Hitler como “Führer”. Isso foi descrito por Sibyl como uma terrível punhalada nas costas de todos da Bauhaus que se engajaram na luta pela sobrevivência da escola e não concordavam com os ideais nazistas.
Após a exposição “Arte Degenerada”5, em 1937, Mies compreendeu, definitivamente, que tentava se firmar no lado errado e emigrou para os EUA. Lá dirigiu o Departamento de Arquitetura do Instituto de Tecnologia de Illinois e realizou muitos projetos consolidando seu nome como um grande arquiteto do modernismo e influenciando uma geração de arquitetos.
Em Berlim e Potsdam, Mies realizou um número considerável de projetos que foram edificados. Outros, porém, não saíram do papel6, aos quais inclui-se o icônico edifício Wabe. Em 1921, Mies participou de um concurso para um edifício comercial, projeto “Wabe” (Favo de mel), na Friedrichstrasse, em Berlim. Seu projeto, um arranha-céu de escritórios triangular de 20 andares na forma de um favo de mel de cristal envidraçado, era bastante incomum e foi rejeitado.
A perspectiva abaixo faz parte do arquivo Mies van der Rohe no Museu de Arte Moderna – MoMA em Nova York. Presente de Ludwig Mies van der Rohe.

“Wabe”, contribuição para o concurso de ideias para o edifício alto da estação de Friedrichstraße, projeto: Ludwig Mies van der Rohe, 1922.
fonte: https://bauhauskooperation.de/wissen/das-bauhaus/werke/architektur/wabe-wettbewerbsbeitrag-berlin
Algumas obras em Berlim
Casa Perls
A casa cúbica e compacta, pintada de amarelo, telhado plano de quatro águas, evidencia a influência da arquitetura classicista do memorável arquiteto prussiano do final do século 18 e início do sec. 19, Karl Friedrich Schinkel. Num primeiro contato, a edificação causa certa estranheza, em especial para quem conheceu Mies van der Rohe a partir de suas obras modernistas e da imagem de arquiteto transformador e inovador, que rompeu com dogmas da arquitetura tradicional. Porém ele projetou essa casa para pessoas conservadoras e as mudanças mais determinantes para o modernismo ainda estavam por vir.

Foto: Maristela Pimentel Alves (2024)
Neste projeto, existe uma conexão clara entre o edifício e seu jardim confirmada não apenas do ângulo do jardim para a casa, mas também a partir da planta baixa, do sistema de eixos visuais que Mies criou por meio das aberturas com o objetivo evidente de mesclar o interior e o exterior. Encomendada por Käte e Hugo Perls, a casa foi construída de 1911 a 1912. Ele era um advogado e colecionador de arte e ela de família de industriais e também colecionadores de artes. A casa se localizava, naquele tempo, no distrito agrícola de Zehlendorf, hoje um bairro de Berlim e foi erguida para servir como a segunda residência do casal, sua casa de campo.

Planta baixa Casa Perls
Fonte: livro Mies van der Rohe. Das gebaute Werk

Foto: Maristela Pimentel Alves(2024)

Foto: Maristela Pimentel Alves (2024)
Já em 1918, Perls vendeu a propriedade ao socialista, colecionador de arte e mecenas Eduard Fuchs, que planejava criar um museu de caricaturas. Mies projetou então a extensão da casa em 1928, mas com design estilístico diferente e estruturalmente independente. Apesar de ter sido construída, os nazistas impediram a criação do museu. Fuchs fugiu para Paris e toda a sua coleção de arte foi leiloada pelos nazistas.
Casa Werner
Construída em 1913, esta moradia em um estilo de casa de campo prussiana dos anos de 1800, foi projetada a pedido do casal Werner. O arquiteto acrescentou um jardim rebaixado estritamente estruturado. Este é o único jardim sobrevivente que Mies van der Rohe projetou e construiu na Alemanha. Tanto a casa quanto a sua área externa são tombadas pelo patrimônio histórico.

Foto: Maristela Pimentel Alves (2024)
Foto sobreposta: Parcival Schule

Foto: Maristela Pimentel Alves (2024)
Nesta obra não se evidencia a influência da arquitetura de Schinkel, muito presente nas obras de Mies. Em publicações mais recentes, o projeto da casa Werner é abordado como um trabalho inicial não amado de Mies van der Rohe, como uma obra desajeitada, retrógrada, pesada e antiquada. Porém marca uma fase de começo da carreira do arquiteto, que logo seria suprimida pela corrente de transformação para o modernismo.
As plantas baixas, os cortes e as fachadas deste projeto podem ser encontrados nos links abaixo.
Plantas baixas: https://www.moma.org/collection/works/121198
Cortes e fachadas: https://www.moma.org/collection/works/119055
Casa Lemke
Esta joia do modernismo, hoje transformada em um pequeno museu e chamada de “Casa Mies van der Rohe”, foi projetada para Karl e Martha Lemke, proprietários de um estúdio de arte gráfica. A obra teve início em agosto de 1932 e em março de 1933 foi aprovada para uso.
Os clientes desejavam uma casa pequena e modesta, com o charme do modernismo que eles tanto apreciavam. A princípio, ela serviria como uma casa de campo, onde realizariam recepções para seus clientes comerciais no terraço, tendo como pano de fundo o pitoresco lago Obersee. Por isso, demandavam do arquiteto que a casa tivesse uma conexão primorosa com o exterior e que a residência pudesse ser estendida para o jardim em dias agradáveis.

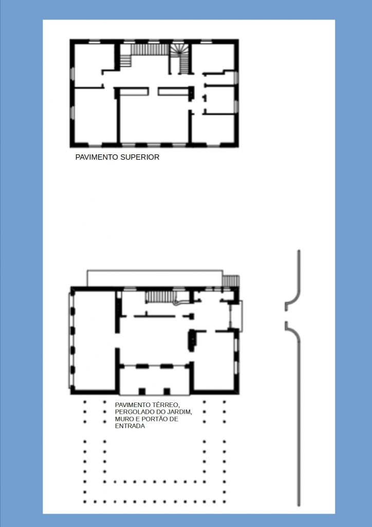
Planta baixa casa Lemke
*Por este link também é possível acessar mais uma imagem da planta baixa da casa Lemke: https://www.miesvanderrohehaus.de/architektur/geschichte/
Mies van der Rohe, que ainda não era tão famoso na época, trabalhou com um orçamento apertado. Na proposta definitiva, a planta baixa era de apenas um andar em forma de L, com uma área útil de 160 m², que dá para um pequeno pátio privado e com janelas e portas que vão do chão ao teto. A planta ficou bastante convencional, com sala de estar, escritório e apenas um dormitório (o casal não tinha filhos). A cozinha, área de serviços e quarto de empregada ficam alinhados e conectados à sala de estar.

Foto: Maristela Pimentel Alves (2024)
Apesar dos limites dos recursos financeiros, a casa ficou espaçosa e aberta. A arquitetura clara é focada no essencial e conecta os moradores e visitantes à natureza. A transição do interior para o jardim foi feita no nível do solo, sem degraus, por meio do terraço de convivência e um gramado no jardim projetado por Herta Hammerbacher. Este grande jardim faz uma transição discreta para a paisagem circundante e representa uma zona de transição entre a casa e a paisagem do parque na margem oposta do lago Obersee.

Foto: Maristela Pimentel Alves (2024)

Foto: Maristela Pimentel Alves (2024)

Foto: Maristela Pimentel Alves (2024)
O escritório de Mies foi responsável pelos móveis originais da casa, desenhados em colaboração com sua parceira de vida e colega de trabalho na época, a designer Lilly Reich. Eles mobiliaram a casa com peças em madeira. Hoje em dia, os móveis da propriedade de Lemke podem ser vistos na coleção do Museu de Artes Decorativas de Berlim, Das Kunstgewerbemuseum.
Esta foi a última obra de Mies van der Rohe na Alemanha antes do arquiteto migrar para os EUA.
Karl e Martha Lemke moraram na casa até 1945, mas esta, que se localizava na antiga Berlim oriental, foi requisitada pelo Exército Vermelho nesta data (final da Segunda Guerra Mundial) e foi usada primeiro como garagem. Da década de 1960 até a queda do Muro de Berlim, a propriedade teve usos diversos pela segurança estatal da República Democrática da Alemanha RDA. Em 1977 ela passou a ser protegida como patrimônio histórico. Depois da queda do muro e da reunificação de Berlim, a casa passou à propriedade municipal e foi aberta ao público. De 2000 a 2002, tanto a casa quanto o jardim foram completamente reformados com base em planos históricos.
Neue Nationalgalerie
A Neue Nationalgalerie (Nova Galeria Nacional), concluída entre 1965 e 1968, foi a última e, provavelmente, a mais famosa realização de Mies van der Rohe em Berlim. Mies tinha 76 anos quando foi contratado para realizar este projeto e não viu o edifício pronto, pois faleceu antes de sua inauguração.
A Neue Nationalgalerie é um museu dedicado à arte do século XX, assim como um espaço para exposições do mesmo tema. Foi o segundo edifício a ocupar o Kulturforum – uma grande área dedicada a equipamentos culturais que ficava próxima do recém-construído Muro de Berlim. O primeiro a ser construído no terreno foi a Filarmônica de Hans Scharoun, concluída em 1963.

Foto: Maristela Pimentel Alves (2022)

Foto: Maristela Pimentel Alves (2022)
Os princípios modernistas e a linha de desenho que caracterizou o arquiteto estão bastante evidentes nesta obra: o uso inovador de materiais e a clareza estrutural compõem a estética minimalista caracterizada por uma estrutura de aço e amplas paredes de vidro, estabelecendo uma conexão perfeita entre o interior e o exterior. Esse espaço aprimora a experiência espacial e deseja atender às necessidades funcionais de uma galeria de arte.
O projeto da Nova Galeria Nacional foi concebido a partir da fusão de outros dois projetos que Mies havia concluído anteriormente, mas que não foram edificados. Um deles foi para a sede administrativa da Rum Bacardi em Santiago de Cuba e o outro para o Museu Georg Schäfer na cidade alemã de Schweinfurt.
Nesta obra percebe-se traços conscientes do Altes Museum de Karl Friedrich Schinkel construído de 1823 a 1830, mas os longos balanços laterais da cobertura e as duas colunas finas fogem totalmente do design tradicional de museus de Berlim e dão passos à frente no desenvolvimento da arquitetura modernista.
O projeto da Neu Nationalgalerie foi encomendado para ser inovador e representar valores ideológicos como: simbolizar as liberdades do Ocidente. Esse tema foi muito explorado nesta época como arma cultural da guerra fria.
Ao mesmo tempo que o museu foi bastante elogiado por uma parte do público, considerado uma obra tradicional e moderna ao mesmo tempo, que se tornou um ícone da arquitetura modernista, ele causou também estranheza e reações. Chegaram a apelidá-lo na época de “Posto de Gasolina”. A criação e seu criador não ficaram imunes à críticas.
No artigo de Oliver Wainwright, na revista The Guardian de 2021, a Neu Nationalgalerie, como museu, teria sido considerada um desastre desde que foi inaugurado. Os problemas iam desde Janelas com rachaduras – todo ano, um dos vidros do salão de cima teve que ser trocado; forte condensação e espaços de exposição inadequados. As galerias subterrâneas, que abrigam a coleção permanente, lembram um tanto um complexo de escritórios sem janelas. Tratando-se de mais um exemplo onde a forma supera as exigências da função.
Entre 2015 e 2021, o edifício foi restaurado e o condutor deste trabalho, o arquiteto inglês David Chipperfield, em uma manifestação diplomática disse, entre outras revelações, que “É surpreendente como o edifício funciona bem”, “quando as pessoas se rendem às suas limitações”. Isso foi também citado no mesmo artigo por Oliver Wainwright.
A coleção de obras de artes pertencentes à instituição Neu Nationalgalerie é muito superior à sua capacidade de armazenamento e exposição. Por isso, está em construção um outro edifício ao seu lado, como uma extensão do museu.
*As obras citadas acima são tombadas pelo patrimônio histórico.
Bibliografia:
SCHULZE, Franz y WINDHORST, Edward: Mies van der Rohe. Una biografía crítica
Barcelona, Reverté, 2016, 524 páginas.
HOCHMAN, Elaine S.: Architects of fortune: Mies van der Rohe and the Third Reich
ISBN-10: 0880641215
HEISSENBÜTTEL, Dietrich; Komplizierte Nazi-Frage; Datum: 31.07.2019
Publicado na revista KONTEXT Wochenzeitung – Ausgabe 435
ROITBER, Guilherme Prado G; BAPTISTA, Fabiana Maria, GOMES, Luiz Roberto: Expositions of ‘degenerate’ art and music in nazi Germany: reflections on totalitarian aesthetics and education.
Federal University of São Carlos, Sao Paulo State University
22 Dec 2020 – Revista Digital do LAV (Universidad Federal de Santa Maria) – Vol. 13, Iss: 3,
Mies van der Rohe Haus: https://www.miesvanderrohehaus.de/architektur/geschichte/
KROHN Carsten: Mies van der Rohe. Das gebaute Werk Birkhäuser Verlag, Basel 2014, ISBN 9783034607391, Gebunden, 240 Seiten.
Notas de rodapé:
- Escola vocacional para o ensino de conhecimentos básicos em uma profissão técnica industrial. ↩︎
- Peter Behrens foi um arquiteto e designer alemão. É considerado por muitos o primeiro designer da história e um dos primeiros designers freelancers. Foi um dos arquitetos mais influentes da Alemanha e conhecido como um dos fundadores da Werkbund de designers industriais. Foi também consultor artístico da AEG. Estudou pintura em Karlsruhe e Dusseldorf. ↩︎
- Zehlendorf naquele tempo era um distrito agrícola. A partir de 1920 foi integrado à cidade de Berlim ehoje é um bairro da capital alemã. ↩︎
- A escola Bauhaus foi uma instituição pioneira no ensino de arte, design e arquitetura que buscava unificar várias disciplinas artísticas. Ela foi fundada em 1919 por Walter Gropius, Seu currículo inovador enfatizava a integração de artes, artesanato e indústria. ↩︎
- “A exposição de Arte Degenerada, conhecida como Entartete Kunst, foi inaugurada em 1937 em Munique pelo regime nazista para mostrar a arte modernista considerada imoral e corruptora para a sociedade. Tinha como alvo trabalhos associados ao modernismo, ao bolchevismo e às contribuições artísticas de grupos marginalizados, incluindo judeus e negros. A exposição serviu como uma ferramenta de propaganda para promover os ideais nazistas de superioridade racial e censurar e desacreditar a arte que contradizia seus valores estéticos e morais totalitários.” ↩︎
- Projetos edificados em Berlim
• Haus Perls, Berlin (1911)
• Haus Werner, Berlin (1913)
• Haus Kempner (zerstört), Berlin (1921–1923)
• Haus Eichstaedt, Berlin (1921–1923)
• Haus Feldmann (zerstört), Berlin (1921–1923)
• Das Revolutionsdenkmal (zerstört), Friedhof Berlin-Friedrichsfelde (1926)
• Mehrfamilienhäuser Afrikanische Straße, Berlin (1927)
• Geschäftshaus Saul Adam, Berlin (1928)
• Haus Lemke (heute Mies van der Rohe Haus), Berlin (1933)
• Neue Nationalgalerie, Berlin (1967)
Projetos edificados em Potsdam
• Haus Riehl, Potsdam-Neubabelsberg (1907)
• Haus Urbig, Potsdam-Neubabelsberg (1917)
• Haus Mosler, Potsdam-Neubabelsberg (1924) ↩︎
